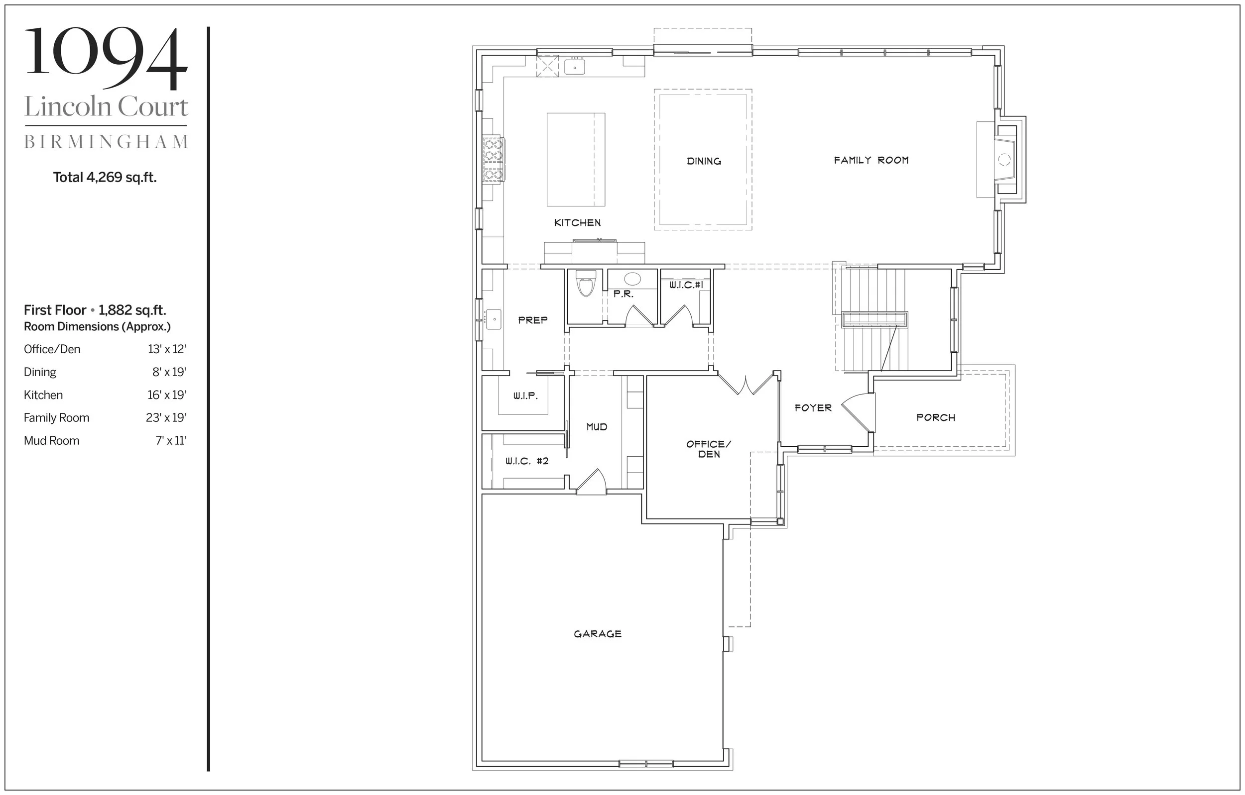
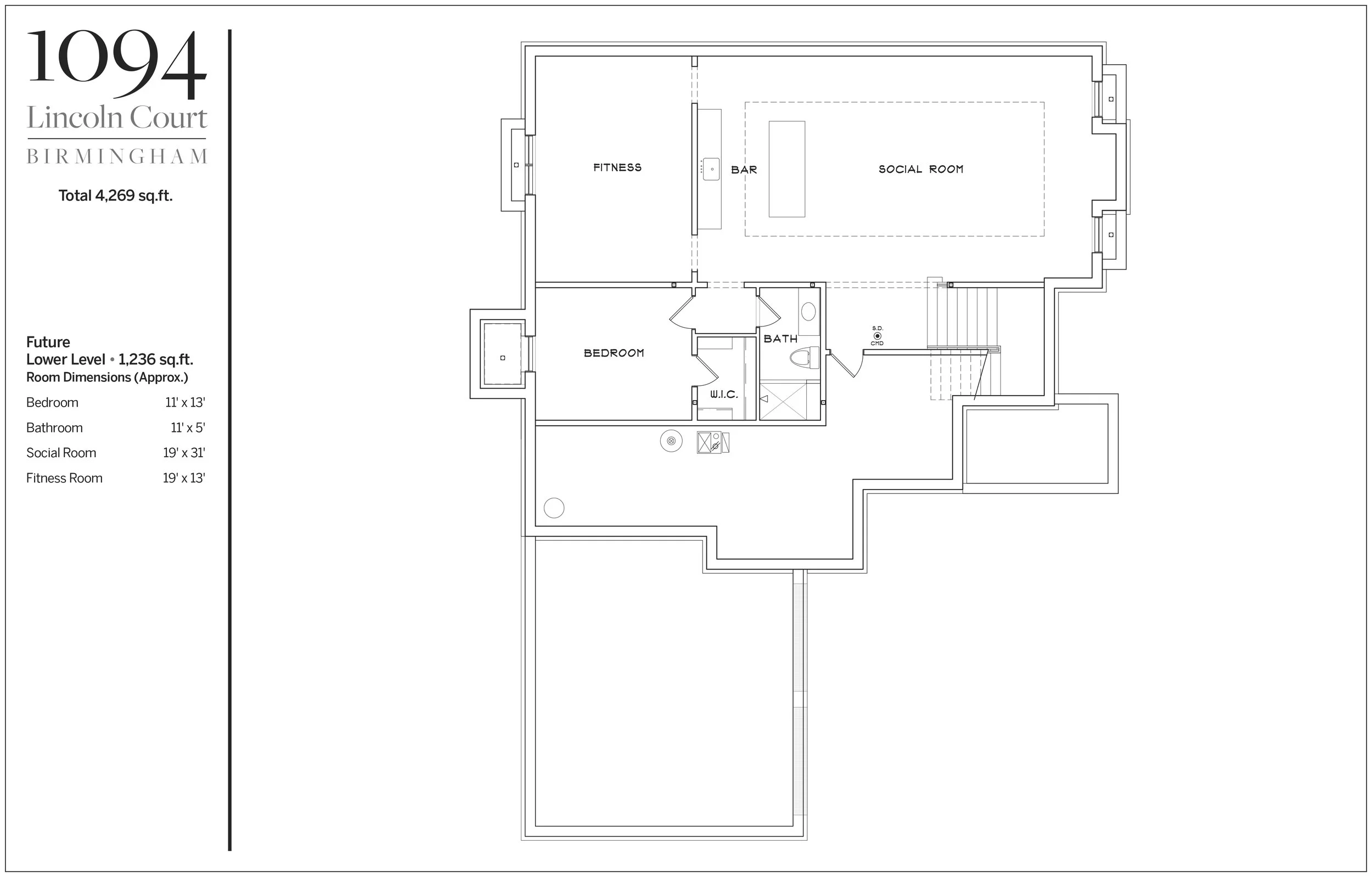
The Layout of 1094 Lincoln Court — Craftsmanship and Sophistication.

Every element of this home will reflect craftsmanship and contemporary sophistication. Currently under construction, 1094 Lincoln Court is envisioned as both an architectural statement and a refined backdrop for modern living.